发布职位
退出登录
学校简介
学校领导
师资队伍
组织机构
环境艺术设计系
视觉传达设计系
时尚工艺系
美术系
数字艺术设计系
其他系部
招生
就业
创业
工美资讯
视频专区
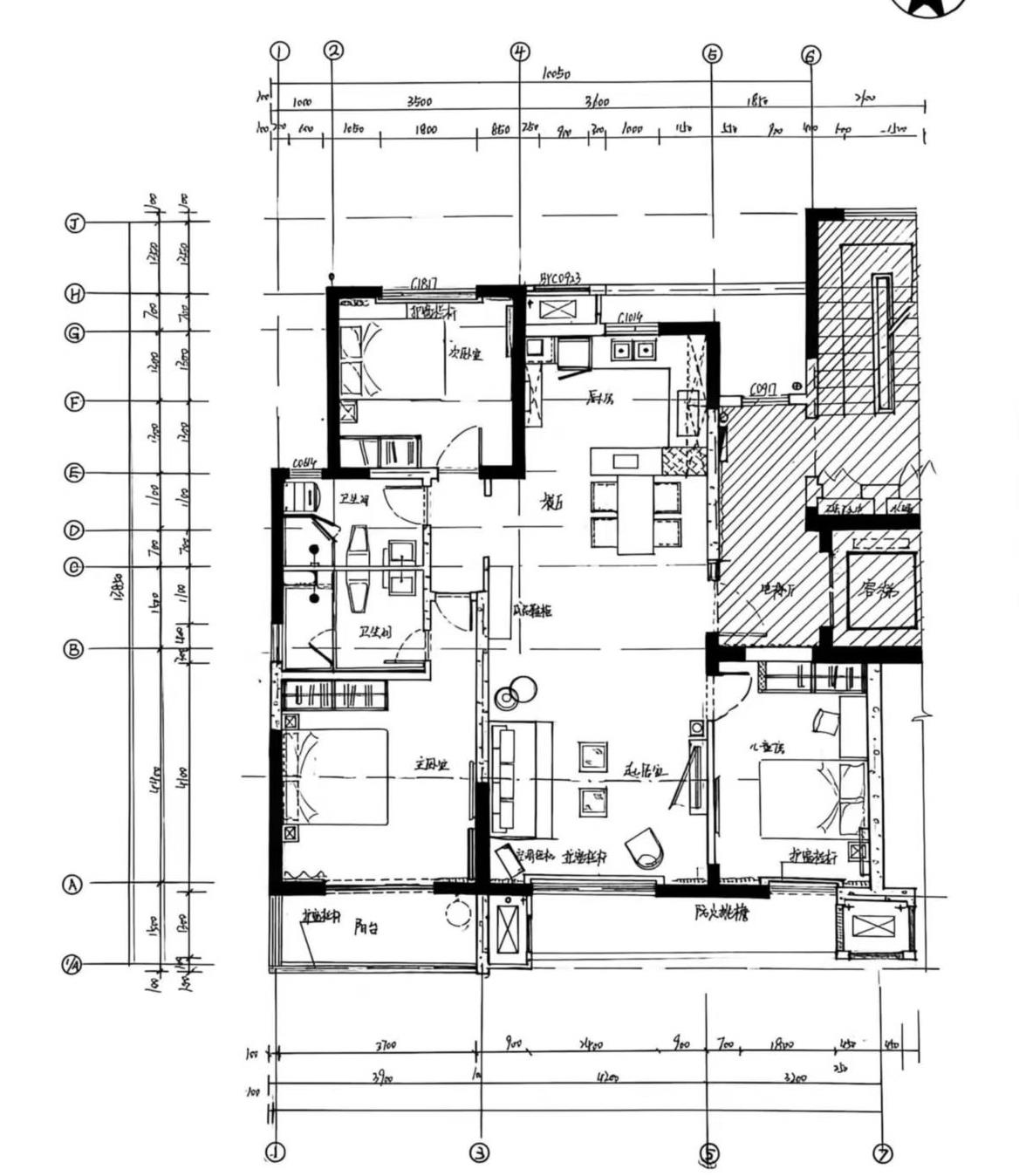
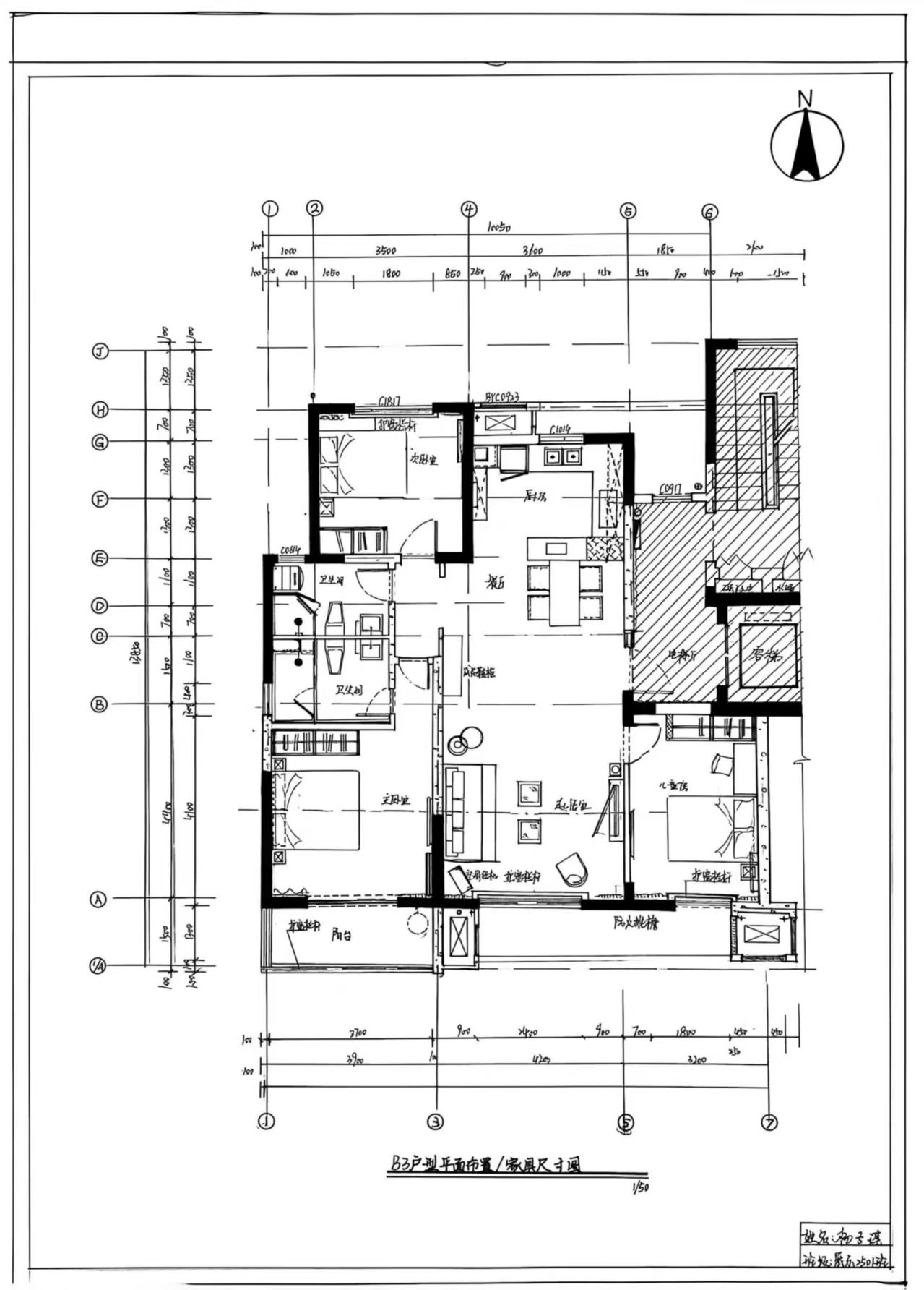
杨子琪 展示2502班 建筑制图与识图 指导老师郝婉晴
24级风园集体作业1 花艺设计
手绘技法表达
手绘作品
模型设计制作